Default £400,000

Calculate your mortgage repayments

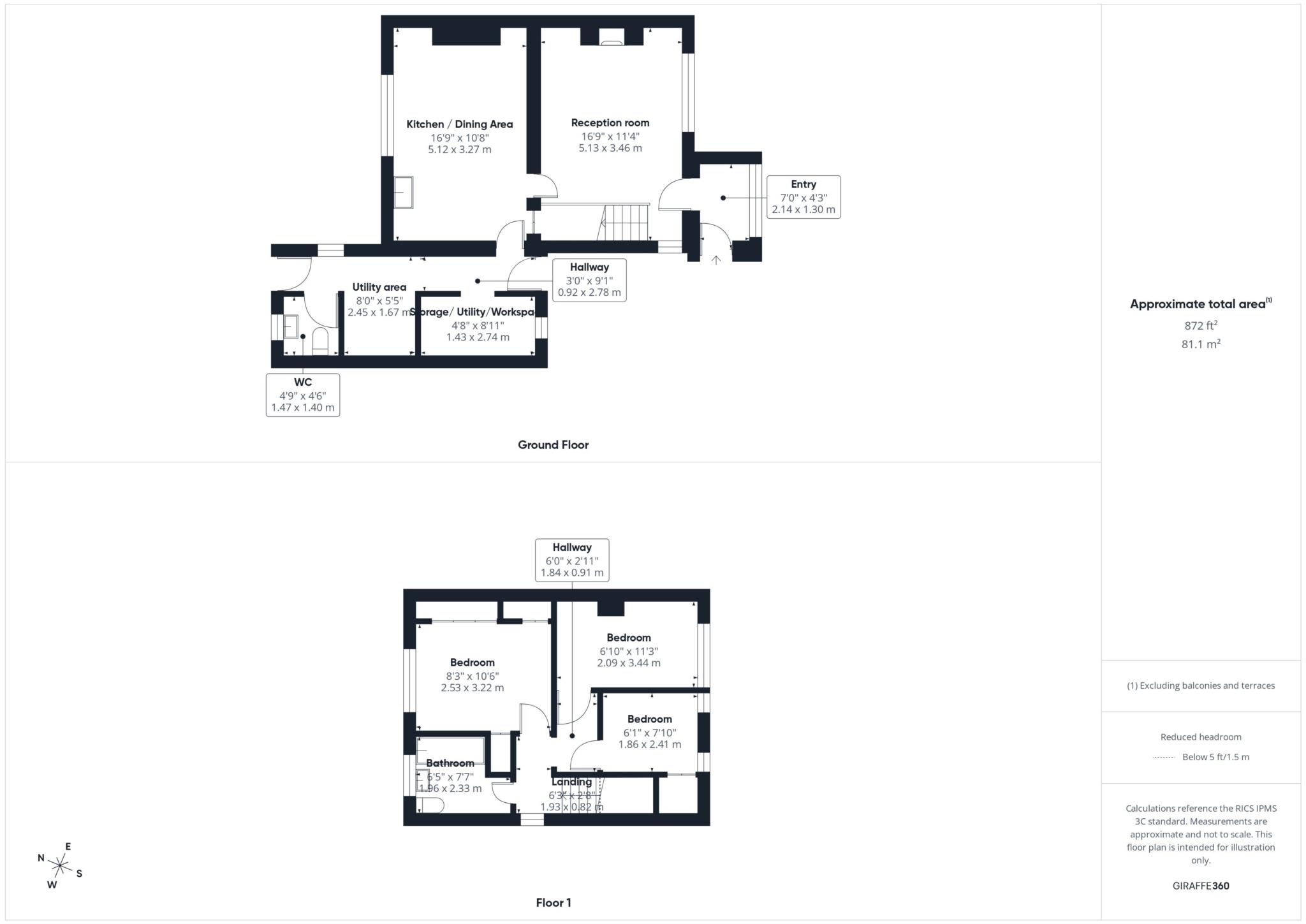
3 bedroom Semi-detached house for sale

Willis Road, Haddenham

  • Semi-detached house
  • 3 bed
  • 1 bath
  • 1 reception

Key Features

  • Close to Schools & Amenities
  • In Need of Modernisation
  • Off Street Parking
  • Potential to Extend stpp
  • Flexible Accommodation
  • Downstairs WC
  • Open Plan Kitchen/ Dining Room
  • Reception/ Living Room
  • Family Bathroom
  • Double Bedroom

Description

Harpers are delighted to present this charming 3-bedroom family home, brimming with potential and offering an excellent opportunity for those looking to add their own style and stamp.

Entering through the porch, you`re greeted by a bright and generous living/reception room, where a log-burning stove could be added to create a wonderfully cosy focal point. The spacious kitchen/dining area is perfectly sized for transforming into a contemporary family space, and the ground floor is further enhanced by a handy WC and a flexible utility/workroom suited to storage, laundry, or creative projects.

Upstairs, the property offers a generous double bedroom and a second double currently arranged as two separate rooms thanks to a stud partition wall, providing flexibility for those needing an extra bedroom, nursery, or home office. A family bathroom completes the first floor.



Externally, the property boasts off-street parking to the front and a large, mature rear garden an excellent space for children, entertaining, or future landscaping. The home could also benefit from a rear extension, subject to the usual planning permissions, allowing buyers to unlock additional space if desired.



Further benefits include a full rewire carried out last year and a new boiler installed around 2022, offering peace of mind to future owners. The property is perfectly located for short walks to local schools, shops, and everyday amenities, making it an ideal choice for families or those seeking convenience.




Note on layout: Originally built as a 2-bedroom home, this property has been enjoyed as a 3-bedroom dwelling for many decades, and the current layout reflects this long-established use.



Notice
Please note we have not tested any apparatus, fixtures, fittings, or services. Interested parties must undertake their own investigation into the working order of these items. All measurements are approximate and photographs provided for guidance only.

Council Tax
Buckinghamshire Council, Band C

Utilities
Electric: Mains Supply
Gas: Mains Supply
Water: Mains Supply
Sewerage: Unknown
Broadband: Unknown
Telephone: Unknown

Other Items
Heating: Gas Central Heating
Garden/Outside Space: No
Parking: Yes
Garage: No


Location


Floorplan

Floorplan

EPC

EPC for Willis Road, Haddenham

*This mortgage calculator is provided for general information purposes only. It's intended to provide you with an estimate of your potential mortgage payments and does not constitute an offer of finance or advice. The calculations are based on the information you provide and do not take into account your individual needs and circumstances.

The calculator does not include all the costs you will need to pay when taking out a mortgage. Your actual mortgage payments may be higher or lower than the estimates provided by this calculator. The interest rates used in the calculations are subject to change and may not reflect the actual rates available in the market.

Please note that the calculator does not consider changes in interest rates over time, early repayment charges, or any other fees and charges that may apply to your mortgage. You should always seek professional advice before making any financial decisions.

Remember, your home may be repossessed if you do not keep up repayments on your mortgage.

Calculate Your Stamp Duty
£
Results
Stamp Duty To Pay:
Effective Rate:
Tax Band % Taxable Sum Tax
Share this property